Ledig 4:a

Doppingvägen 5

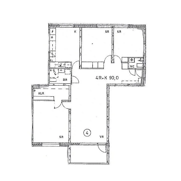
Nu kan vi äntligen erbjuda en 4:a + kök på Doppingvägen 5. Lägenheten har balkong i västerläge med kvällssol och en fantastisk utsikt ända till Kobba Klintar. Lägenheten är mycket rymlig och har bl.a. dubbla toaletter samt walk-in closet i anslutning till huvudsovrummet.

I hyran ingår en avgiftsfri fräsch bastu och tvättstuga, ett stort cykelförråd i källaren och eget rymligt förråd. Medföljer gör även egen parkering med motorvärmare.

Fiber är även färdigt indraget i lägenheten.

Maila för mer info och visning.

Ansök vid intresse via kontaktformuläret uppe till höger


Bilder

Info

Yta: 90 m2 + balkong

Hyra: 1100 €/månad inkl. allt förutom den egna elförbrukningen

Tillträdesdatum: Omgående

Uppsägningsvillkor: Enligt hyreslagen. 1 månads garantihyra är gällande.